1008 Wh Jackson ST Melbourne, FL 32901

UPDATED:
Key Details
Property Type Vacant Land
Sub Type Unimproved Land
Listing Status Active
Purchase Type For Sale
Subdivision Metcalfs Unrecorded Plat Of Balem Allen Tract
MLS Listing ID 1055280
HOA Y/N No
Annual Tax Amount $4,158
Tax Year 2024
Lot Size 7,405 Sqft
Acres 0.17
Lot Dimensions 35x153
Property Sub-Type Unimproved Land
Source Space Coast MLS (Space Coast Association of REALTORS®)
Property Description
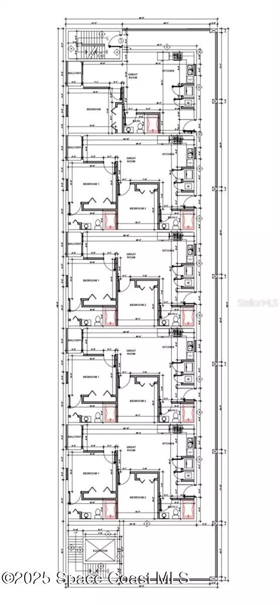
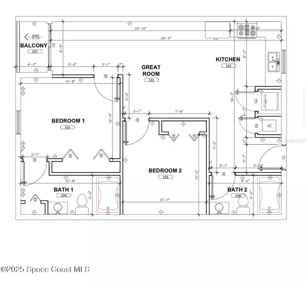
The sale includes a prime lot along with a 1-year valid construction permit for a modern 10-unit apartment building featuring: - 8 spacious units of 2 bedrooms / 2 bathrooms - 2 units of 1 bedroom / 1 bathroom - 14 dedicated parking spaces - An elevator for tenant convenience - Contemporary architectural design and professional landscaping This is a true turnkey project
The financials are equally compelling. With projected gross annual rental income exceeding $250,000
All approved plans, permits, and documentation will transfer to the buyer at closing with option to have your own builder or deliver a complete project with our turnkey option.
Location
State FL
County Brevard
Area 330 - Melbourne - Central
Direction From University Ave. go North on US1, Left on WH Jackson, cross over the railroad tracks (before the stop sign) house is on the right.
Exterior
Exterior Feature ExteriorFeatures
Utilities Available Cable Available, Electricity Available, Sewer Available, Water Available
Present Use Commercial,Multi-Family
Street Surface Asphalt
Road Frontage City Street, County Road
Garage No
Building
Lot Description Other
Sewer Public Sewer
Water Public
Schools
Elementary Schools Harbor City
High Schools Melbourne
Others
Senior Community No
Tax ID 28-37-02-80-00000.0-0013.00
Acceptable Financing Cash, Conventional, Other
Listing Terms Cash, Conventional, Other
Special Listing Condition Corporate Owned
Virtual Tour https://www.propertypanorama.com/instaview/spc/1055280

GET MORE INFORMATION




